發布時間:2023-08-21
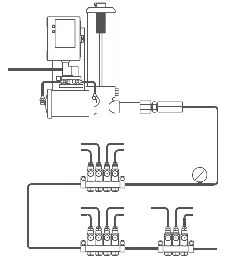
單線遞進式潤滑係統
工作原理:
單線遞進式係統主要由潤滑泵、主管路、分支管路、各級遞進式分配器及電控箱組成。泵站輸出潤滑脂,通過一級(母)分配器由一路輸油變成多路出油。這些多路出油再由二級(子)分配器分成更多的分支油路;根據需要還可以增加三級分配器,這樣便組成單線遞進式油路,可以向上百個潤滑點精確既定比例分配、供送潤滑脂。

優點:
(1) 給油定量準確。分配器采用容積計量,給油量不受外界因素的影響。
(2) 給油可靠。由潤滑泵輸出的高壓潤滑劑直接推動分配器活塞向潤滑點壓送潤滑劑,隻要潤滑泵有足夠高的壓力,各級分配器動作,潤滑油即可可靠的到達潤滑點。
(3)隻要係統在工作,每個潤滑點都能獲得預定的給脂量,不會有個別潤滑點得不到潤滑的情況。
(4) 係統沒有背壓,油泵壓力全部用來克服分配器及管路的阻力,而且管路壓力可隨阻力的增減而自適應。即溫度降低時管路壓力會自然上升,而溫度上升時管路壓力自然會降下來。
(5) 在全部潤滑點中,隻要有任一處堵塞,整個係統就會超壓,係統就會超壓報警,所以隻要監視一台母分配器的動作,就可實現對全係統的監視
缺點:
(1)正如硬幣有正反麵,上述單線係統的第(5)條優點,也就暗含著單線係統的一個缺點:如果有一個潤滑點堵塞,整個係統會因超壓報警而停機,所以需要及時予以維修處理,否則其它沒有堵塞的點也會得不到潤滑。實踐中為了避免這一缺點,可在遞進式分配器出油口加裝超壓溢流閥或回流閥,以避免個別潤滑點堵塞而造成這個係統停機。
(2)單線係統的可擴展性和現場調整性不好,所以要求係統設計人員事先要詳細準確的掌握整個設備的潤滑點數量和每個潤滑點所需的潤滑油量。如果設計參數不準確,就需要更換相應的分配器甚至母分配器來調整。
(3)係統所有潤滑點按照同一頻次給油。即是說一次打油所有的母分配器、子分配器都要動作。實踐中可以把主管路分成幾個支路,每個支路都有一個母分配器,並安裝高壓球閥來人為隔離某些支路來給特定部位打油,而且每次隻能開一路。(如果要用電磁閥來實現,控製係統會過於複雜)。
雙線式幹油集中潤滑係統
工作原理:
雙線式幹油集中潤滑係統主要由潤滑泵、換向閥、兩條主管路、分支管路、雙線分配器、壓力控製器(壓差開關或壓力操縱閥)、電控箱及管路附件等組成。潤滑泵輸出的潤滑經過換向閥交替由兩條主管路輸送到雙線分配器的進口,經過雙線分配器定量分配後送往各個潤滑點。
工作過程中,兩條主管路中:管路Ⅰ供送壓力潤滑劑,管路Ⅱ向潤滑泵的貯油器開放。雙線分配器的活塞由供送的潤滑劑推動,隻要管路Ⅰ內的壓力達到分配器動作所需的壓力,分配器活塞即動作,將定量的潤滑劑擠壓到潤滑點。分配器動作完成又使管路Ⅰ內的壓力繼續上升,當管路Ⅰ內各處的壓力都超過分配器動作所需的壓力時,分配器全部動作,係統完成了一次給油過程。
當管路Ⅰ內的壓力上升到壓力控製器(或壓力操縱閥)動作所需的壓力時,壓力控製器動作,向電控箱發出一個信號,電控箱控製換向閥換向,切換供油管路,管路Ⅰ向貯油器開放,卸荷,管路Ⅱ供送壓力潤滑劑。隨著管路Ⅱ中壓力的上升,雙線分配器的活塞向上述相反的方向動作,將定量的潤滑劑通過分配器的另一給油口擠壓到潤滑點。
當壓力控製器再次發出信號,換向閥再次切換供油管路時,係統進行了一個完整的給油循環。係統中所有潤滑點均得到了定量的潤滑劑。

優點:
(1)給油定量準確。分配器采用容積計量,給油量不受外界因素的影響。分配器設置了給油量調整機構,可以精確調整給油量。安裝完畢後仍可方便的調節分配器的排量。
(2)給油可靠。由潤滑泵輸出的高壓潤滑劑直接推動分配器活塞向潤滑點壓送潤滑劑,隻要潤滑泵有足夠高的壓力,分配器即可動作。若分配器的一個出口發生堵塞,不影響其他潤滑點的正常供油,係統仍可正常工作。雙線分配器的每對出口都可實現目測或電氣監控。通過安裝動作傳感器,可實現對特定部分潤滑點或全部潤滑點的監控。
(3)係統擴展方便。係統安裝後或安裝時需要增加或減少潤滑點都很方便。
(4)給油範圍大,點數多。公稱壓力40Mpa的係統可向半徑100米,多達1000個潤滑點供送潤滑脂。
缺點:
(1)個別潤滑點堵塞,係統仍然正常工作,不易覺察。
(2)實踐中可在重要的潤滑點處加裝接近開關以檢測分配器活塞的動作,來保證可靠供油。
(3)使用人員也應注意定期巡查,以避免個別潤滑點長期得不到有效潤滑。